Proyectos

Concurso INP

La solución arquitectónica tiene su principal origen en un concepto fundamental que emana de la propia naturaleza de la institución. El INP, como mayor institución de seguri­dad social del país, busca consoli­dar una imagen pública que se arraigue con fuerza, espíritu y digni­dad en el panorama ciudadano. Este arraigo se maneja en una doble lectura. La primera a nivel peatonal y vivencial, consiste en entregar a la ciudad un espacio público que dé cuenta de la condición de acoger y recibir. La otra, a nivel macro urbano, y en un plano icónico, es posicionarse como una señal en la silueta urbana del casco neurálgico de la ciudad. Los desafíos se centran entonces en lograr el objetivo anterior, pero además establecer un diálogo armónico con los elementos contextuales que definen el entorno.
Nace entonces la idea de generar un edificio que se plantea en un rotundo gesto de acogimiento en estrecha relación simbólica con el sentido de la institución, pero que al mismo tiempo pasa a ser la prolongación del espacio calle, constituyendo así un gran lugar para todos.
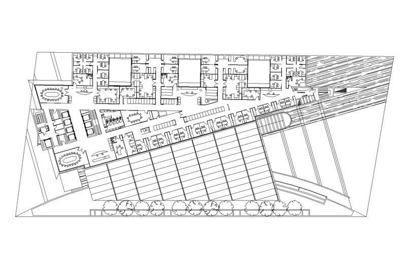
El partido general separa el programa en dos edificios que entre sí conforman aquel espacio vital. La decisión de diferenciar dos volúmenes, está amparada en los usos y destinos diferenciados que el mismo programa plantea.
Así, existe un cuerpo bajo de cuatro pisos que alberga princi­pal­mente las áreas de atención de público y el casino, y un cuerpo alto de dieciséis pisos que concentra todas las oficinas de la institución, constituyéndose como el edificio operacional. Bajo la “plaza-calle” se desa­rro­lla un auditorio y sus dependencias, con acceso independizado desde la plaza misma.